
4684 N State Road 25, Rochester, IN 46975
574.225.0053

Tippy Bend MHC offers comfortable, affordable living in Rochester, Indiana, just steps away from the scenic Tippecanoe River and all the amenities of small-town life. Enjoy a peaceful setting with outdoor recreation nearby and easy access to local schools, employers, and everyday conveniences.
Tippy Bend is being completely redeveloped, featuring brand new infrastructure throughout the community, thoughtfully designed to support long-term quality living. At the heart of the neighborhood is a beautiful pond, creating a calm, scenic backdrop that enhances the sense of space and connection to nature.
At Tippy Bend, you’ll find quality homes in a refreshed community designed for ease, comfort, and connection — all just a short drive from schools, work, and play.
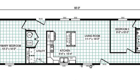
NEW HOMES AVAILABLE
PENDING SALE
TRANSPARENCY
That's right, we're different than the rest. You want to know the details that matter without digging.
Below you'll find of TIPPY BEND what you really want to know.
HOW MUCH DOES IT COST YOU TO LIVE HERE?
Lot Rent: $495.00
Deposit: $0.00
Fees: $0.00
Water: Included in Rent
Sewer: Included in Rent
Trash: You Pay Mike's Direct
Electric: You Pay REMC Direct
Gas: You Pay NIPSCO Direct
Internet: Included in Rent
WHO ARE THE UTILITY PROVIDERS?
Water: Community Well
Sewer: Community Septic
Trash: Mike's Trash Service
Electric: Fulton County REMC
Gas: NIPSCO
Internet: RTC
TIPPY BEND PHOTO GALLERY
COMMUNITY MAP
















